McCullough Mulvin Architects je architektonická kancelář se sídlem v Dublinu, která se zabývá moderní architekturou v Irsku. Tématem jejích prací jsou vzájemné vztahy mezi uměním, krajinou a historickou pamětí.
Jde o projekty z veřejné sféry, kulturní a komunální budovy, knihovny a školy; relativně jednoduše pojaté veřejné budovy slouží definici nových veřejných zájmů v proměňující se společnosti, řeší problémy rozptýleného světla a vyrovnávají se s tvrdými podmínkami v Irsku; projekty zkoumají potenciál pro všední monumentálnost a vytvářejí architekturu v souladu s představami klientů, ale i mimo tento rámec.
Oceněné projekty: Dentální nemocnice v Dublinu (RIAI – Královský institut architektů v Irsku, za nejlepší nemocniční budovu); Centrum Trinity Long Room Hub (Cena RIAI za nejlepší budovu určenou vzdělání, v užším výběru poroty pro cenu RIBA – Královského institutu britských architektů, nominace na Mies van der Rohe Award; zvláštní uznání občanského hnutí Europa Nostra za knihovnu v Rushi, Cena RIAI za nejlepší renovovanou stavbu; psychiatrická jednotka pro děti a dospívající v Bessboro (Cena RIAI za nejlepší zdravotnickou budovu); knihovna Jamese Usshera na Trinity College v Dublinu (v užším výběru na zlatou medaili RIAI – trienále, nominace na Mies van der Rohe Award); centrum umění Source – zdroj a knihovna (cenu RIAI za nejlepší veřejnou/kulturní budovu); městská knihovna ve Waterfordu (regionální ocenění RIAI); kanceláře na Lincolnově nám. (uznání anglické charitativní organizace UK Civic Trust).
Rozšíření areálu Thaparovy univerzity v Patiale, Paňdžáb
Areál v Patiale je částí úrodné paňdžábské roviny v obklopení zdí a lesů; jde o lidmi upravenou přírodu. Při úvaze o přístupu k architektuře tohoto velkého areálu je třeba vnímat celou univerzitu jako krajinu a jednotlivé budovy nově, evokujícím způsobem uspořádat – přimět přírodu, aby se rozprostřela do skalnatých vrchů a stinných údolí – a pak jimi vést cestu z jednoho konce areálu na druhý. Dvě stěžejní skupiny budov jsou strategicky umístěny tak, aby tuto koncepci podporovaly: centrum výuky (přibl. 60 000 m2), přiléhající k nově otevřenému přednímu vstupu na jedné straně, a studentské bydlení (přibl. 30 000 m2) na druhém konci obou dramatických pólů aktivit. Další nové budovy – včetně existujících univerzitních – jsou propojeny krytou a vkusně osázenou pěšinou, umožňující studentům a zaměstnancům univerzity procházet areálem zcela novým způsobem, v kontaktu s přírodou, a přitom chráněni před extrémními výkyvy počasí. Koncepce zahrad je rozšířena u ubytoven studentů a centra výuky o kryté prostory,
o růžové zahrady u ubytoven studentek a střešní zahrady na každé budově centra.
Obě hlavní budovy mají výrazně inovativní architektonický vzhled a vyvolávají množství různorodých smyslových a funkčních zážitků. Hlavní studentská ubytovna se skládá ze sedmi výškových budov ve tvaru L, v nichž je celkem 7 000 studentských pokojů a místností určených ke společnému užívání; směřují na různé strany – propátrávají a zkoumají obzor jako krásné figurky na šachovnici – a jsou propojeny pódiem s recepcí, tělocvičnou a jídelními prostory pod nimi. Uvnitř jsou prostorově rozdílné společné místnosti, vzájemně propojené s dvojnásob vysokými prostorami k nenucenému setkávání skupinek studentů; řada ložnic tu má rovněž stíněné balkony. 500 studentek je ubytováno ve zvláštní budově v zahradní scenerii – ve třech existujících blocích a dalším čtvrtém, jenž s nimi tvoří promyšlený celek uprostřed vonící zahrady v mogulské tradici. Na nádvoří nové budovy je skrytá zahrada pravidelného půdorysu, k níž se za jasného denního světla obracejí otevřená jídelna, tělocvična a recepce, zatímco ložnice a společné místnosti nad nimi stíní fasády. Centrum výuky se podobá ubytovnám v tom smyslu, že jeho části spojuje stíněné pódium v přízemí, odlišuje se však svou intenzitou – podporuje mezioborový výzkum a studium tím, že slučuje a směšuje jeden obor s druhým, a umožňuje tak tok prostoru a výměnu informací a myšlenek. Tři hlavní budovy s kamenným obložením – knihovna, počítačové středisko a přednáškový blok – vytvářejí heterogenní sošnou skupinu staveb z červeného kamene, viditelnou z celého areálu; toto seskupení na sebe ihned upozorní po příjezdu do Patialy a je pro univerzitu reprezentativní. Na první pohled připomíná indickou pevnost, má hornatý charakter a dotváří krajinu.
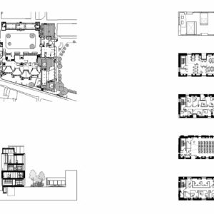
Centrum Long Room na Trinity College v Dublinu
Nová budova výzkumného ústavu humanitních věd a umění na dublinské univerzitě – centrum Long Room Hub – je prostorem pro myšlení, kde se mohou střetávat ideje a vydávat se novým směrem. Stavba na Fellows Square je situována v samém historickém středu univerzity; má obdélníkový tvar se čtyřmi podlažími a vyvýšenými střešními okny propouštějícími světlo, které jimi proniká jako světelné sloupce – tato „bidýlka“ na konci existujícího bloku ústavu humanitních věd z roku 1975 uzavírají náměstí a nabízejí výhled přes střechu čítárny a studovny z roku 1937 na náměstí Front Square. Nová budova má být hybnou silou myšlenek, její prolamovaný voštinový žulový povrch je plný nepřesností, s horizontálními pruhy kamene poskládanými v nahodilém rytmu; vznáší se nad starší stavbou posluchárny pod sebou. Charakter stavby je dán její štíhlostí; lze jí prohlédnout ze strany na stranu, vnější obálka je prolamována výklenky vytvářejícími balkony a vnější prostory. Její vysoký, štíhlý profil vyvolává vzpomínku na staré irské věže s drobnými plochými vyhloubeninami a výstupky; zapuštěná okna výklenků se nepravidelně střídají a zvyšují mocnost zdí s dřevěným obložením pro police na knihy a sedadla. Úzké světelné sloupce propadávají strmě budovou a vytvářejí mezery a výřezy, zóny a prostory s dvojnásobnou výškou pro práci a studium. Vzhledem k tomu, že stavba se naklání nad budovou posluchárny, zajišťuje žádané rozpětí 34 metrů dlouhá mostní struktura; baletní konstrukce se opírá o dvě skupiny pilířů, zachycuje konce vzpěr a zlehka je přivádí k zemi.
www.mcculloughmulvin.com
Zdroj: redakce AW, Organic City 2016









English







